MINATOGAOKA 1CHOME HOUSE
Yokosuka Base Main Gate 10 min. (4.3km) drive, Keikyu Taura…
For Rent
¥330,000
2-1-3 Tsurugaoka, Yokosuka, Kanagawa, Japan
For Rent
¥189,000












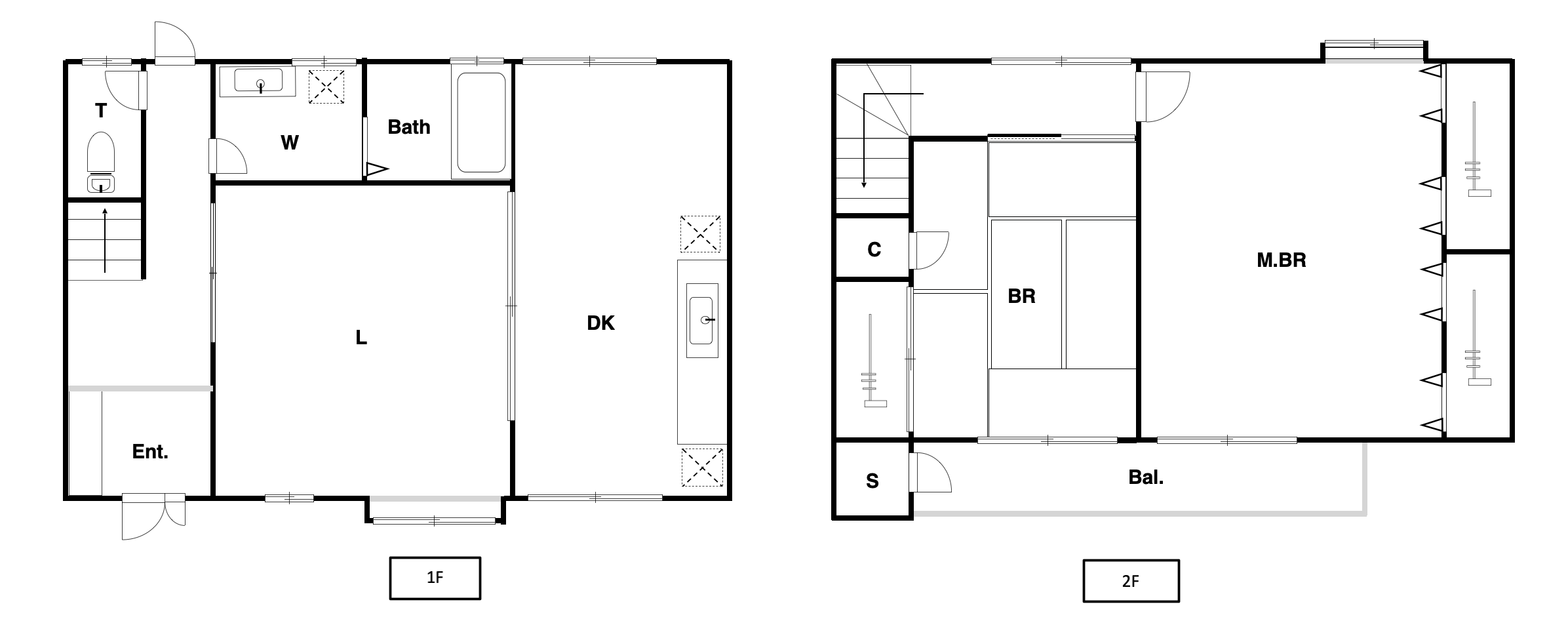
Yokosuka Base Main Gate 9 min. (2.7km) drive, JR Kinugasa train station 15min(1.2km). walk / Townhouse, Spacious Living room & Bedroom, Bright hill view, Floor size 864 sq. ft.
Yokosuka Base Main Gate 10 min. (4.3km) drive, Keikyu Taura…
¥330,000
Yokosuka Base Main Gate 20 min. (8.5 km) drive /…
¥350,000